SIGN UP CUSTOMER LOGIN
Main Photo

3 Total Photos [Click to View All]

Main Photo
Main Photo

Chicago, IL 60620

$695,000
Active / MLS# 12609505 / Multi Unit - Multiple / Chicago
9 Beds
6 Baths

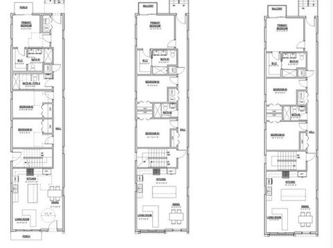
Simeon Manor Contemporary New Construction in West Chatham Owner-Occupant Buyers Only for one of four 3-unit residential buildings offering three spacious units, each featuring 3 bedrooms and 2 full bathrooms with open-concept layouts. Designed for modern living, each unit includes private outdoor deck space and high-quality finishes throughout. Kitchens feature stainless steel appliances, induction stove with built-in air fryer, soft-close cabinetry, and premium quartz countertops. Units also include in-unit washer and dryer, video intercom system, recessed lighting throughout, and ceiling fans where appropriate. Built with a high-performance building envelope, the property includes high-efficiency HVAC systems, central air, energy-efficient water heaters, double-pane windows, foam insulation in exterior walls and ceilings, and low-flow plumbing fixtures-enhancing comfort while reducing long-term operating costs. Additional features include premium wood grain luxury vinyl flooring throughout and three assigned parking spaces. Developer offering $15,000 closing cost assistance. Owner-occupant buyers only will participate in landlord and real estate ownership training classes designed to support successful ownership and long-term investment performance.

Read More » Read Less »

Baird & Warner Kim Kelly-Lerner Agent Cell: 630.636.8618 Email

Mortgage Calculator

%
years/fixed
yearly
yearly (est.)
(Payments are an estimate and may vary by lender)

Estimated Payment

$ 1,747.15 per month $1,544.44 Principal & Interest $0.00 Property Tax (data not provided by mls) $202.71 Homeowner's Insurance
Get your competitive financing options.

Property Details

Property Type: Multi Unit - Multiple
Basement: None
Heating: Electric
Lot Size: 24 X 125
Roof Type: Flat
Year Built: 2026

Feature Descriptions

Additional Structures: None
Exterior: Frame, Other
Lot Dimensions: 24 X 125
Other Equipment: Security System, Intercom, CO Detectors, Ceiling Fan(s), Multiple Water Heaters, Water Heater-Electric
Parcel#: 20331120370000
Parking: Assigned, Garage Faces Side, Yes
Security: yes
Sewer: Public Sewer
Total Rooms: 21
Township: South Chicago
Water: Lake Michigan, Public

Schools

High School: Simeon Career Academy High Schoo
Middle School: Mcdade Elementary School Classic
Elementary School: Wescott Elementary School
School District: District 299

Disclaimer: The accuracy of all information regardless of source, including but not limited to square footage and lot size, is deemed reliable but not guaranteed nor warranted and should be personally verified through personal inspection by and/or with the appropriate professionals.

Location

See details and scored characteristics about this location.

Listing Office: Village Realty, Inc.

Listing Office Phone: 708-478-1212



Listing data and photos distributed by MLSGRID
Member Participants (and their affiliated licensees, if applicable) shall indicate on their websites that IDX information is provided exclusively for consumers’ personal non-commercial use, that it may not be used for any purpose other than to identify prospective properties consumers may be interested in purchasing, that the data is deemed reliable but is not guaranteed by MLS GRID, and that the use of the MLS GRID Data may be subject to an end user license agreement prescribed by the Member Participant’s applicable MLS if any and as amended from time to time. MLS GRID may, at its discretion, require use of other disclaimers as necessary to protect Member Participant, and/or their MLS from liability.
Based on information submitted to the MLS GRID. All data is obtained from various sources and may not have been verified by broker or MLS GRID. Supplied Open House Information is subject to change without notice. All information should be independently reviewed and verified for accuracy. Properties may or may not be listed by the office/agent presenting the information.


Login to my Baird & Warner account

Pixel